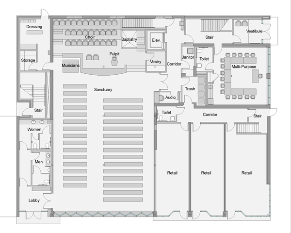
MIXED USE

Antioch Mission CHurch