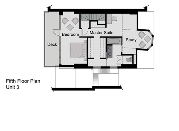
MULTI-FAMILY
Beacon Hill Condos