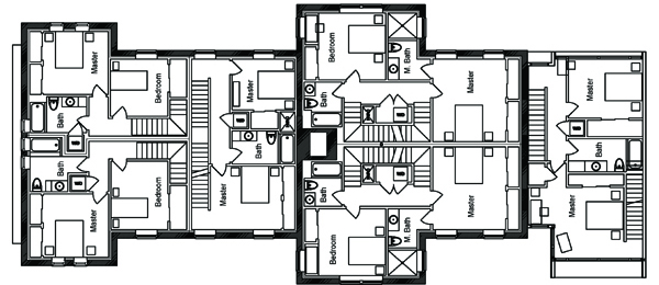
MULTI-FAMILY

URbanica - Engine One