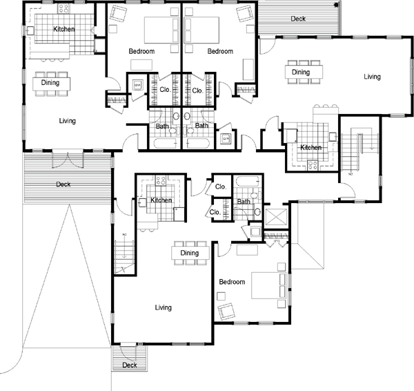
PLANS
 

 

  

MULTI-FAMILY

Ipswich River